824 El Camino Real

Property Overview
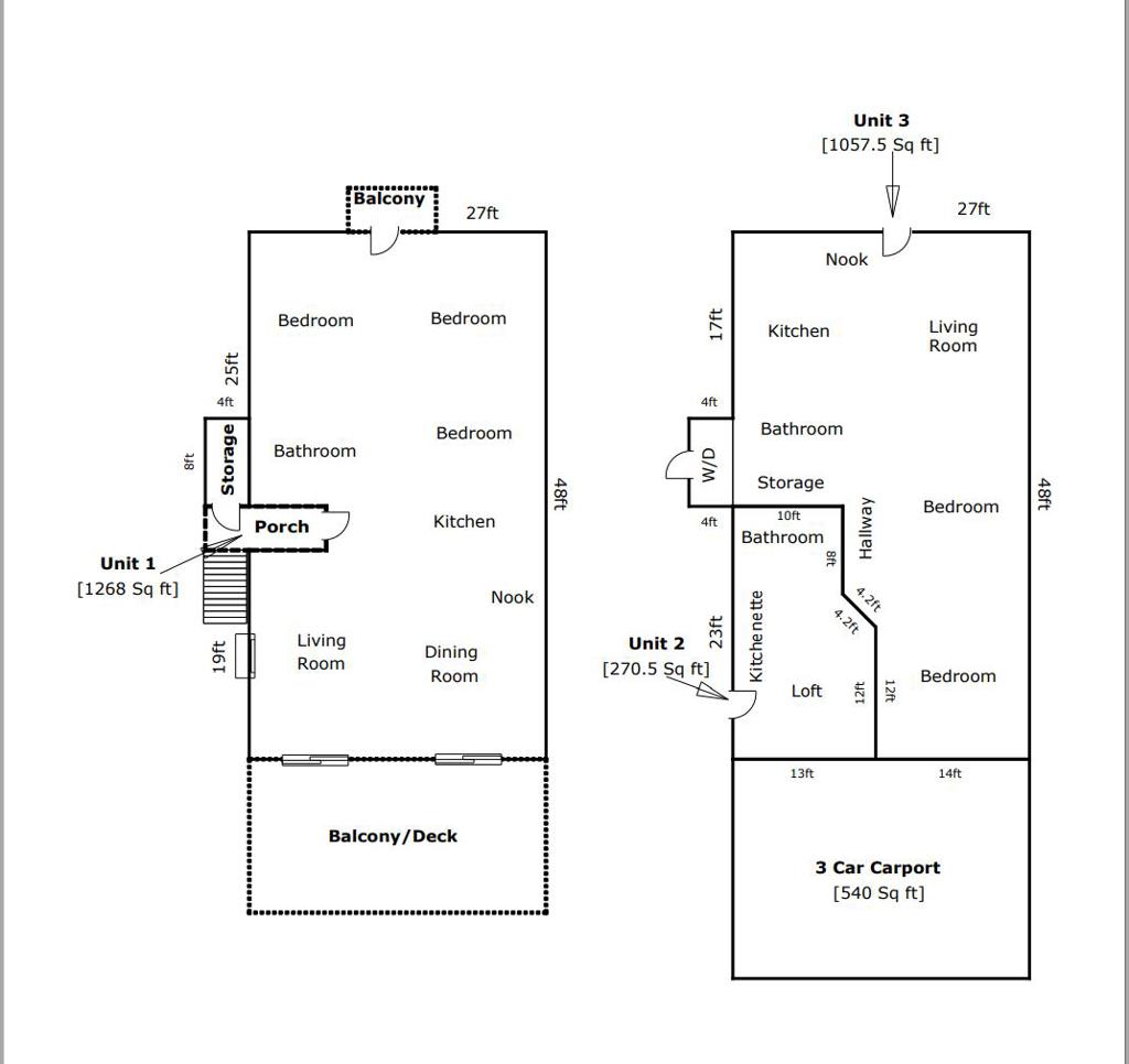
Exceptional Multi-Unit Investment in Prime Burlingame Location Welcome to 824 El Camino Real a rare opportunity to own a fully leased triplex in the heart of Burlingame. This well-maintained property offers three income-producing units, each with strong rental demand, separate utilities, and on-site parking. Located just blocks from transit, shops, dining, and major commuter routes, this asset combines consistent cash flow with long-term appreciation potential. Whether youre looking to expand your portfolio, complete a 1031 exchange, or explore owner-occupancy with income offset, this property checks all the boxes. The layout, condition, and location make it ideal for both seasoned investors and first-time multi-unit buyers. Dont miss this rare chance to secure a high-performing asset in one of the Peninsulas most sought-after markets.
Home Details
Interior Spaces & Features
Community & Neighborhood
Subdivision
No subdivision info
Amenities
No specific amenities listed
Recreation
Recreation info not available
Location & Neighborhood
Frequently Asked Questions
Homeowner resources
Certified San Diego home inspectors
Schedule an inspectionTrusted local movers
Get a quoteCA homeowners insurance
Get a quoteDisclosure: We may have a referral relationship with selected providers.
Get More Info
Crown Coastal Support Team
Responds within 2 hours
“Reza was the best agent we have ever worked with.”— Russell & Susan McQueen
Listing Agent
