1024 Webster Street

Property Overview
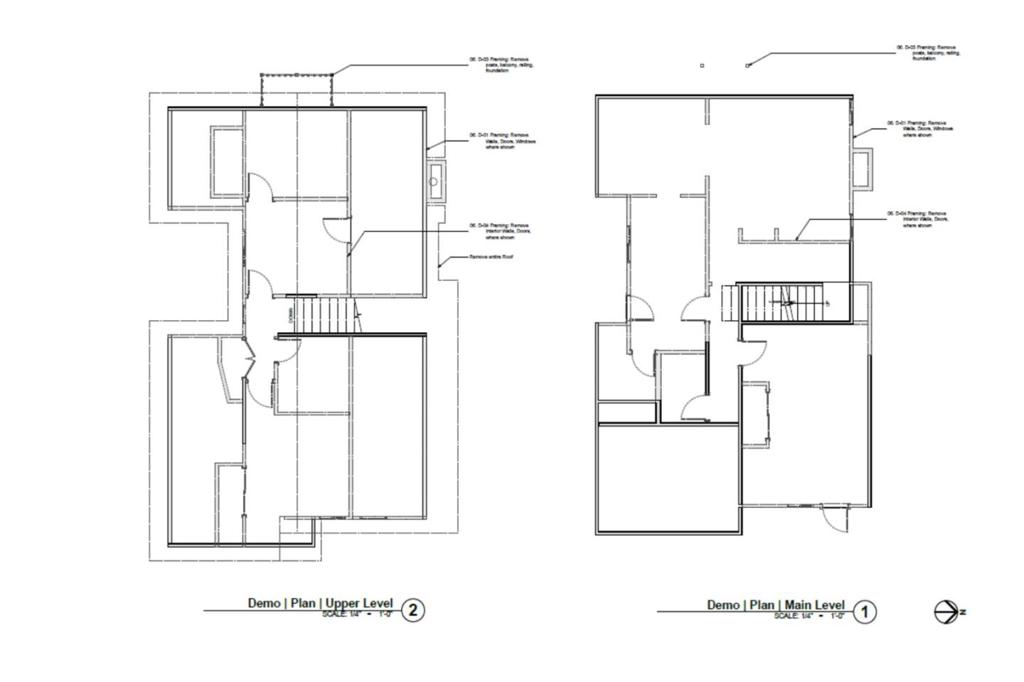
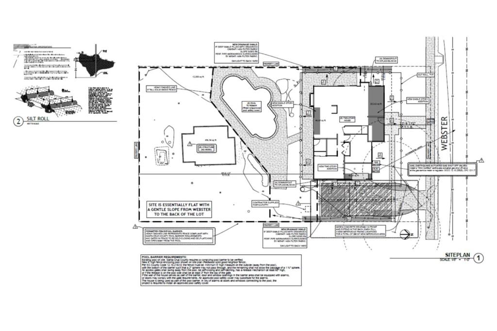
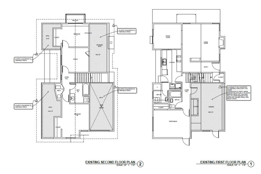
Opportunity knocks at 1024 Webster! Prime Santa Cruz location, a coveted neighborhood, a huge lot, and so much potential. Property is being sold with fully approved plans and permits for a full rebuild. Survey and all county requirements for rebuilding are complete and records regarding the same are available. In-ground pool is already in place and being maintained regularly. The property offers multiple areas for fruit trees, gardening, expanding the additional dwelling unit, and a rose garden. Less than 2 miles to Twin Lakes Beach and East Cliff Drive, this property is the perfect place to build your Santa Cruz dream home. Break ground with the plans available and approved, or create your own for multi-generational living, multiple units, and more - the options are endless at 1024 Webster!
Home Details
Interior Spaces & Features
Community & Neighborhood
Subdivision
No subdivision info
Amenities
No specific amenities listed
Recreation
Recreation info not available
Location & Neighborhood
Frequently Asked Questions
Homeowner resources
Certified San Diego home inspectors
Schedule an inspectionTrusted local movers
Get a quoteCA homeowners insurance
Get a quoteDisclosure: We may have a referral relationship with selected providers.
Get More Info
Crown Coastal Support Team
Responds within 2 hours
“Reza was the best agent we have ever worked with.”— Russell & Susan McQueen
Listing Agent
