4363 Temecula Street

Property Overview
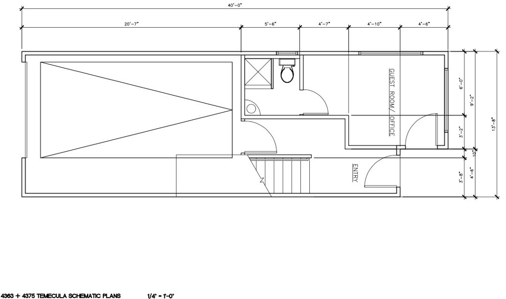
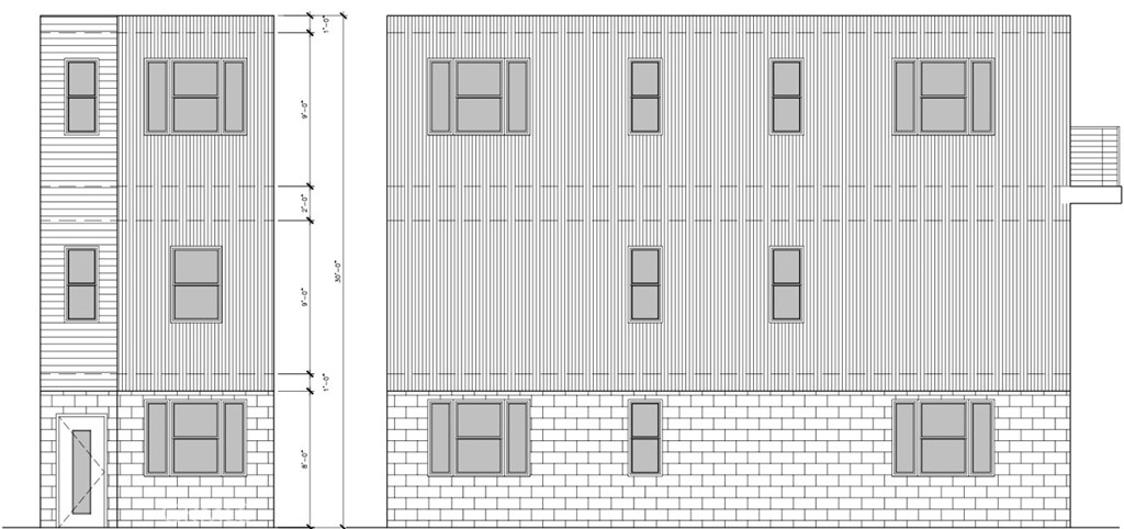
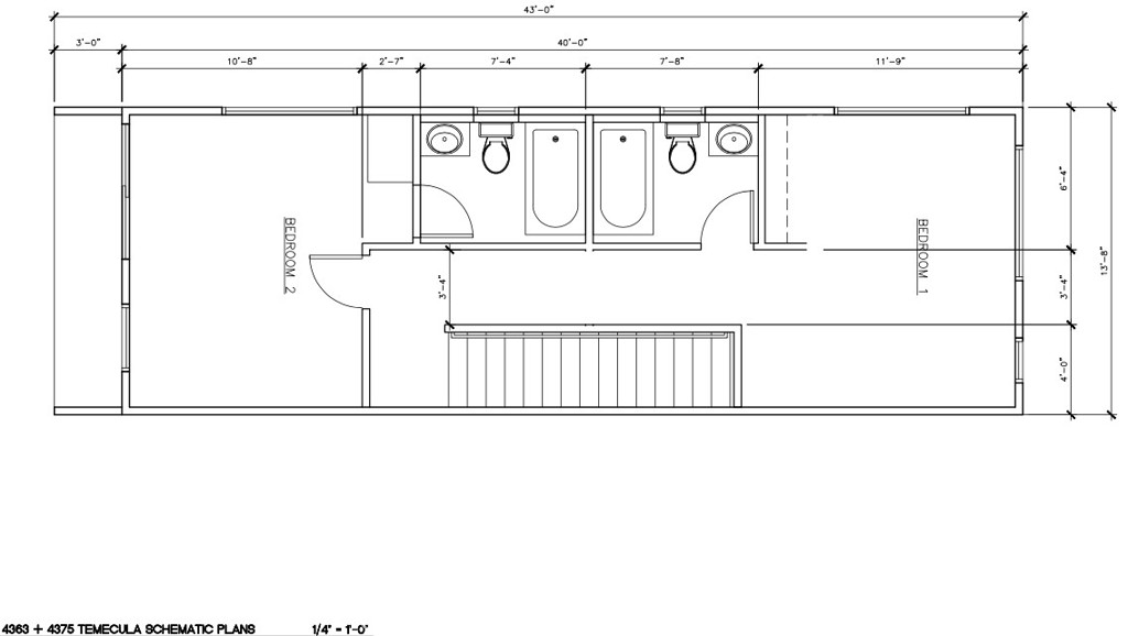
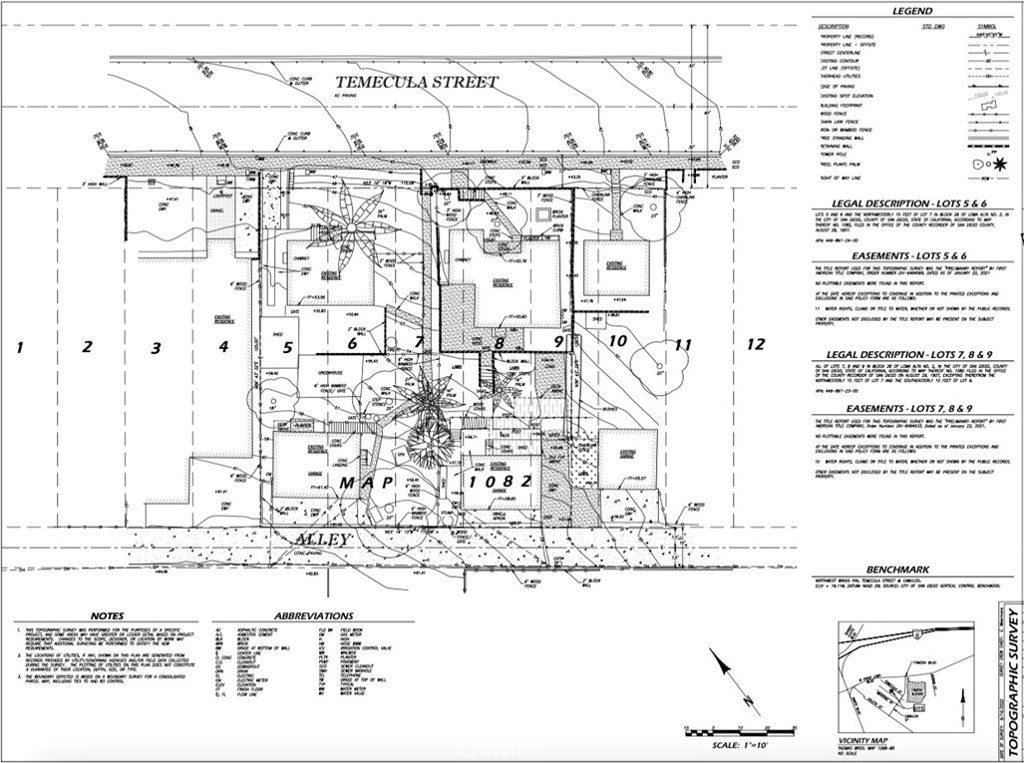
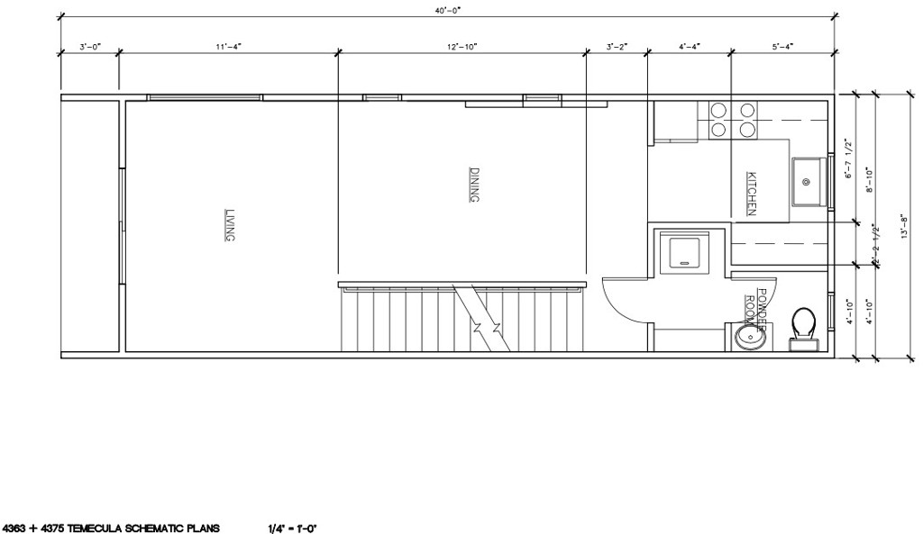
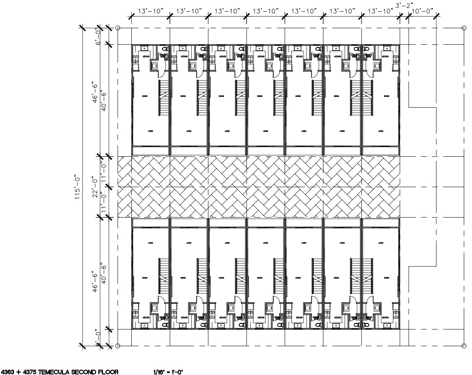
Discover a rare development opportunity in the heart of Point Loma Heights! Can be sold together with the next door listing at 4375-4377 Temecula St. Combined, these two multi-family properties at Temecula St offer an exceptional investment opportunity with 14,380 SF of lot area, with 115' of street and alley frontage and 125' lot depth. Currently, each lot features two single-family homes, for a total of four units. Each unit has undergone recent upgrades and placed with quality tenants. The unit mix is (4365) 2BR/2BA unit (approx. 900 sf) and (4363) 2BR/1BA unit (approx. 963 sf) above a 3-car garage. The neighboring listing's unit mix is (4377) 2BR/1BA unit (approx. 1,200 sf) and (4375) 2BR/1BA unit (approx. 785 sf) above a 3-car garage. Nestled in a quiet, desirable neighborhood, just minutes from Ocean Beach, Mission Bay, and Pacific Beach, with easy access to top restaurants, shopping, and the stunning San Diego coastline. Potential development, to be confirmed with the City, includes the development of up to 12 homes plus ADUs or up to 30 micro units, when combined with the next door listing at 4375-4377 Temecula.
Home Details
Interior Spaces & Features
Community & Neighborhood
Subdivision
No subdivision info
Amenities
No specific amenities listed
Recreation
Recreation info not available
Location & Neighborhood
Frequently Asked Questions
Homeowner resources
Certified San Diego home inspectors
Schedule an inspectionTrusted local movers
Get a quoteCA homeowners insurance
Get a quoteDisclosure: We may have a referral relationship with selected providers.
Get More Info
Crown Coastal Support Team
Responds within 2 hours
“Reza was the best agent we have ever worked with.”— Russell & Susan McQueen
Listing Agent
