1245 W Balboa Boulevard

Property Overview
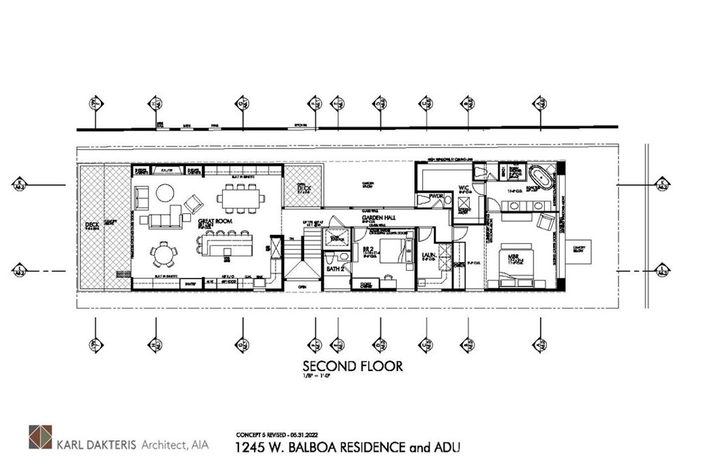
Ocean View Beach Cottage with Approved Plans for a Luxury Home on Balboa Peninsula Welcome to your dream property, just one row from the ocean with stunning views from the roof deck! This unique opportunity offers a charming beach cottage and a detached efficiency studio, perfect for immediate use or rental income. The property is located off a spacious 20-foot alley on a generous 31-foot wide by 102-foot-long lot, providing ample space and privacy. The beach cottage was completely remodeled in 2020, featuring new windows and a new roof, ensuring a comfortable and modern living experience. But the real gem of this property lies in its future potential. The owners have fully approved construction drawings from the City of Newport Beach, ready for a brand-new, 5 bedroom, three-story single-family dwelling. Imagine living in a luxurious new home designed with every modern convenience in mind. The new home design includes five spacious bedrooms, each with its own full bath, and two additional powder rooms for guests. The first floor Family/Game room with bedroom, full bathroom, laundry and kitchenette is designed (per current design code) to easily be converted to an ADU (after future City approval). It offers its own entry and patio, perfect for extended family or rental income if preferred. The home also features a stunning three-story glass elevator, making every level easily accessible. With a total of 3477sq. ft. in the main house including 533 sq. ft. in the Family/Game room area, there is plenty of room for everyone. The new construction will provide four off-street parking spaces, including an attached 2-car garage and a 2-car carport, ensuring ample parking for residents and guests. The second level boasts two decks, one with breathtaking ocean views, while the third level features an expansive 852 sq. ft. roof deck. This incredible outdoor space includes a powder room, appliances, BBQ, fire pit, and is designed for a hot tub, making it the perfect spot for entertaining or relaxing while enjoying the ocean views. The Peninsula is a scenic three-mile stretch with the harbor on one side and sandy beaches on the other. The area is primarily residential with some commercial areas, offering a mix of waterfront restaurants, local surf shops, and some of the best nightlife in Newport Beach. The permits are ready, and the property is set to move forward with construction.
Home Details
Interior Spaces & Features
Community & Neighborhood
Subdivision
Other
Amenities
No specific amenities listed
Recreation
Recreation info not available
Location & Neighborhood
Frequently Asked Questions
Homeowner resources
Certified San Diego home inspectors
Schedule an inspectionTrusted local movers
Get a quoteCA homeowners insurance
Get a quoteDisclosure: We may have a referral relationship with selected providers.
Get More Info
Crown Coastal Support Team
Responds within 2 hours
“Reza was the best agent we have ever worked with.”— Russell & Susan McQueen
Listing Agent
