49269 Jfk Trail

Property Overview
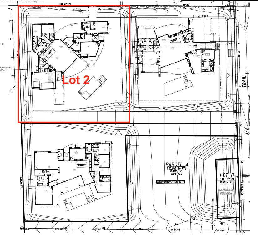
Rare opportunity to build a brand-new custom home in prestigious Ironwood Country Club, on one of the community's last original parcels and once owned by Bing Crosby. This elevated approx. 1/2 acre. homesite is mostly approved with not much left to go vertical, with panoramic mountain views as the backdrop. The 4,247 sq. ft. Desert Modern design by Bob Tyler of RTF Design features 4 bedrooms, 5 baths, open-concept living, and seamless indoor-outdoor spaces including pool and entertainment areas. Two experienced luxury builders are available to complete the project, giving the buyer flexibility and confidence in quality. Located minutes from El Paseo, this boutique development offers exclusivity, history, and the rare chance to personalize a new high-end home in South Palm Desert.
Home Details
Interior Spaces & Features
Community & Neighborhood
Subdivision
Ironwood Country Club
Amenities
No specific amenities listed
Recreation
Recreation info not available
Location & Neighborhood
Frequently Asked Questions
Homeowner resources
Certified San Diego home inspectors
Schedule an inspectionTrusted local movers
Get a quoteCA homeowners insurance
Get a quoteDisclosure: We may have a referral relationship with selected providers.
Get More Info
Crown Coastal Support Team
Responds within 2 hours
“Reza was the best agent we have ever worked with.”— Russell & Susan McQueen
Listing Agent
