1544 1546 Oak Street

Property Overview
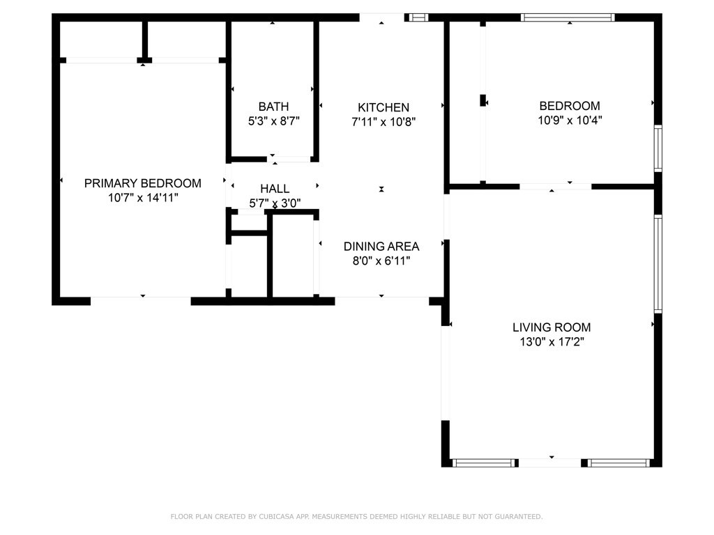
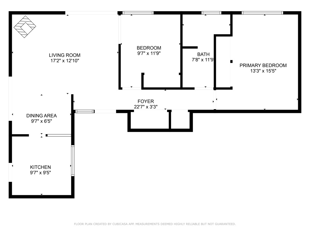
Charming Downtown Solvang Duplex Welcome to this fantastic investment opportunity in the heart of Solvang, California. Perfectly located just steps from restaurants, coffee shops, boutique hotels, and all the charm of the Danish-inspired downtown, this single-level duplex offers both comfort and convenience. The front unit, 1544 Oak Street, features approximately 907 sq. ft. with 2 bedrooms and 1 bathroom. The back unit, 1546 Oak Street, is slightly larger with fence in yard, at approximately 999 sq. ft., also offering 2 bedrooms and 1 bathroom. Both units have been thoughtfully updated, with improvements including refreshed bathrooms, newer flooring, countertops, and a recently replaced roof. Whether you’re looking for an excellent income-producing property, a multi-generational living option, or the chance to live in one unit while renting the other, this duplex provides versatility and strong appeal. With its walkable location in the vibrant core of Solvang, residents can enjoy world-class dining, unique shops, wine tasting rooms, and year-round entertainment right outside their front door.
Home Details
Interior Spaces & Features
Community & Neighborhood
Subdivision
No subdivision info
Amenities
No specific amenities listed
Recreation
Recreation info not available
Location & Neighborhood
Frequently Asked Questions
Homeowner resources
Certified San Diego home inspectors
Schedule an inspectionTrusted local movers
Get a quoteCA homeowners insurance
Get a quoteDisclosure: We may have a referral relationship with selected providers.
Get More Info
Crown Coastal Support Team
Responds within 2 hours
“Reza was the best agent we have ever worked with.”— Russell & Susan McQueen
Listing Agent
