1214 Sereno Dr

Property Overview
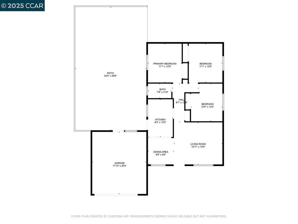
This home is located in Vallejo and has been well maintained. Charming 1,000 sq ft home with 5,662 sq ft lot. Just a short distance to all public schools. Located only minutes from highway 80, and shopping centers. Well maintained front yard, the bank yard has much space for family get togethers and entertainment.
Home Details
Interior Spaces & Features
Community & Neighborhood
Subdivision
Not Listed
Amenities
No specific amenities listed
Recreation
Recreation info not available
Location & Neighborhood
Frequently Asked Questions
Homeowner resources
Certified San Diego home inspectors
Schedule an inspectionTrusted local movers
Get a quoteCA homeowners insurance
Get a quoteDisclosure: We may have a referral relationship with selected providers.
Get More Info
Crown Coastal Support Team
Responds within 2 hours
“Reza was the best agent we have ever worked with.”— Russell & Susan McQueen
Listing Agent
