200 S Moore

Property Overview
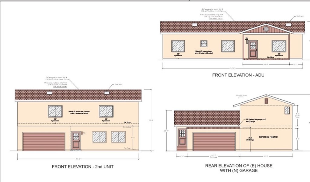
Rare R-3 Zoned Development Opportunity in Prime Monterey Park. This property comes with city-approved plans for two additional units, allowing you to immediately begin your development project and significantly enhance the property’s value. The existing fully upgraded home offers 5 bedrooms and 3 bathrooms, with three bedrooms—including the primary suite—on the main level and two additional bedrooms upstairs. The home features laminated flooring throughout and a spacious enclosed patio that serves as a convenient laundry area and extra storage space. This 2551sqft is move-in ready. Behind the gated driveway, you’ll find a two-car garage, ideal for parking, storage, or use as a workshop/studio. The huge backyard is ready for development. The approved plan includes two units, with 1200sqft and 1497sqft of development. Located within walking distance to restaurants, banks, shops, and the hospital, this property combines unbeatable convenience with strong long-term potential. A perfect choice for developers, investors, or buyers seeking both current rental value and future growth.
Home Details
Interior Spaces & Features
Community & Neighborhood
Subdivision
No subdivision info
Amenities
No specific amenities listed
Recreation
Recreation info not available
Location & Neighborhood
Frequently Asked Questions
Homeowner resources
Certified San Diego home inspectors
Schedule an inspectionTrusted local movers
Get a quoteCA homeowners insurance
Get a quoteDisclosure: We may have a referral relationship with selected providers.
Get More Info
Crown Coastal Support Team
Responds within 2 hours
“Reza was the best agent we have ever worked with.”— Russell & Susan McQueen
Listing Agent
