2825 Majestic Street

Property Overview
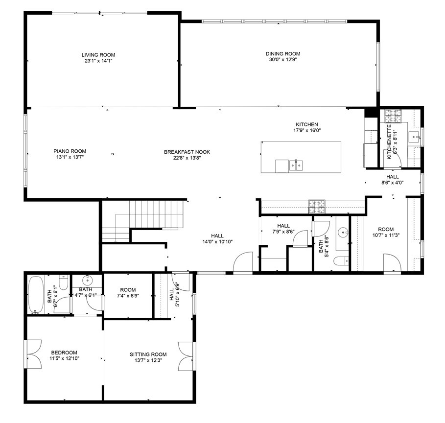
Welcome to an exceptional custom estate set within the prestigious Magnolia at South Hills, one of West Covina’s most distinguished and coveted communities. Built in 2016 and extensively enhanced in 2017, this refined residence offers a rare blend of architectural elegance, thoughtful design, and modern luxury—ideal for sophisticated multi-generational living. Gracefully positioned on a beautifully landscaped 20,473 sq ft lot, the home spans nearly 5,000 sq ft of exquisitely curated living space. The grand yet functional floor plan features five generously sized bedrooms, each with its own private en-suite bathroom, along with a guest powder room. A main-level in-law suite, dramatic great room, formal dining room, and custom wine cellar provide both comfort and distinction. Marble staircases adorned with designer wrought-iron railings form a striking focal point, while the open-concept layout flows effortlessly into a tastefully enclosed California room, creating a seamless indoor-outdoor living experience. At the heart of the home is a chef’s kitchen appointed with premium appliances, rich custom cabinetry, and an expansive center island showcasing marble countertops with elegant waterfall side panels—perfectly suited for both refined entertaining and everyday living. A separate secondary (wok) kitchen offers an ideal solution for heavy cooking and culinary versatility. The professionally designed front and rear grounds evoke a private resort setting, highlighted by extensive travertine stone hardscaping, a serene courtyard, and lush landscaping. The backyard sanctuary features a custom infinity-edge exercise pool and a private gazebo gym area, providing a tranquil retreat for relaxation, wellness, and recreation. Perched atop a quiet hill in South Hills, the property enjoys privacy, open skies, and potential city and mountain views, while remaining conveniently close to the South Hills Country Club, top-rated schools, shopping, dining, and major freeway access. This remarkable, move-in-ready estate presents a rare opportunity to experience elevated living, timeless design, and understated luxury in one of Southern California’s most desirable hillside enclaves.
Home Details
Interior Spaces & Features
Community & Neighborhood
Subdivision
No subdivision info
Amenities
No specific amenities listed
Recreation
Recreation info not available
Location & Neighborhood
Frequently Asked Questions
Homeowner resources
Certified San Diego home inspectors
Schedule an inspectionTrusted local movers
Get a quoteCA homeowners insurance
Get a quoteDisclosure: We may have a referral relationship with selected providers.
Get More Info
Crown Coastal Support Team
Responds within 2 hours
“Reza was the best agent we have ever worked with.”— Russell & Susan McQueen
Listing Agent
