460 Oswell St

Property Overview
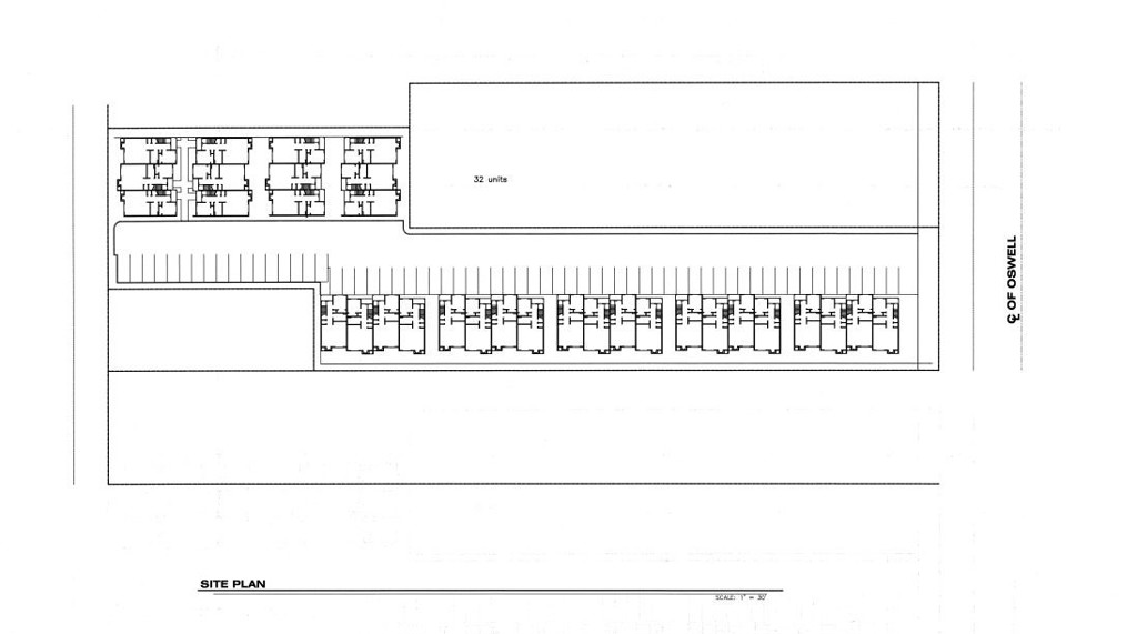
Oswell Townhouses presents an exceptional investment opportunity with a newer 2010 built property combining modern living with significant growth potential. This turnkey property comprises 11 townhouse-style units, each offering spacious 3-bedroom, 2-bath layouts that cater to the growing demand for comfortable and upscale rental options. It is rare to find a newer construction property with 3 bedroom townhouse style units. Tenants are drawn to the high-quality, condo-style living experience, complete with private patios, in-unit washers and dryers, and tasteful upgrades throughout. Furthermore, the property includes nearly an acre of land with the potential to develop an additional 19 townhouse units, dramatically increasing rental income possibilities. Currently yielding $228,200 in annual gross income with room for growth, Oswell Townhouses stands out as a prime investment for those looking to expand their portfolio with a property that offers both immediate returns and future expansion potential. Offered at a total purchase price of $2,750,000, the asset is comprised ofan 11-unit, townhouse-style apartment complex valued at $2,350,000, together with ±0.93 acres of adjacent vacant land valued at $400,000, or approximately $9.87 per square foot.
Home Details
Interior Spaces & Features
Community & Neighborhood
Subdivision
No subdivision info
Amenities
No specific amenities listed
Recreation
Recreation info not available
Location & Neighborhood
Frequently Asked Questions
Homeowner resources
Certified San Diego home inspectors
Schedule an inspectionTrusted local movers
Get a quoteCA homeowners insurance
Get a quoteDisclosure: We may have a referral relationship with selected providers.
Get More Info
Crown Coastal Support Team
Responds within 2 hours
“Reza was the best agent we have ever worked with.”— Russell & Susan McQueen
Listing Agent
