18421 Fairfield

Property Overview
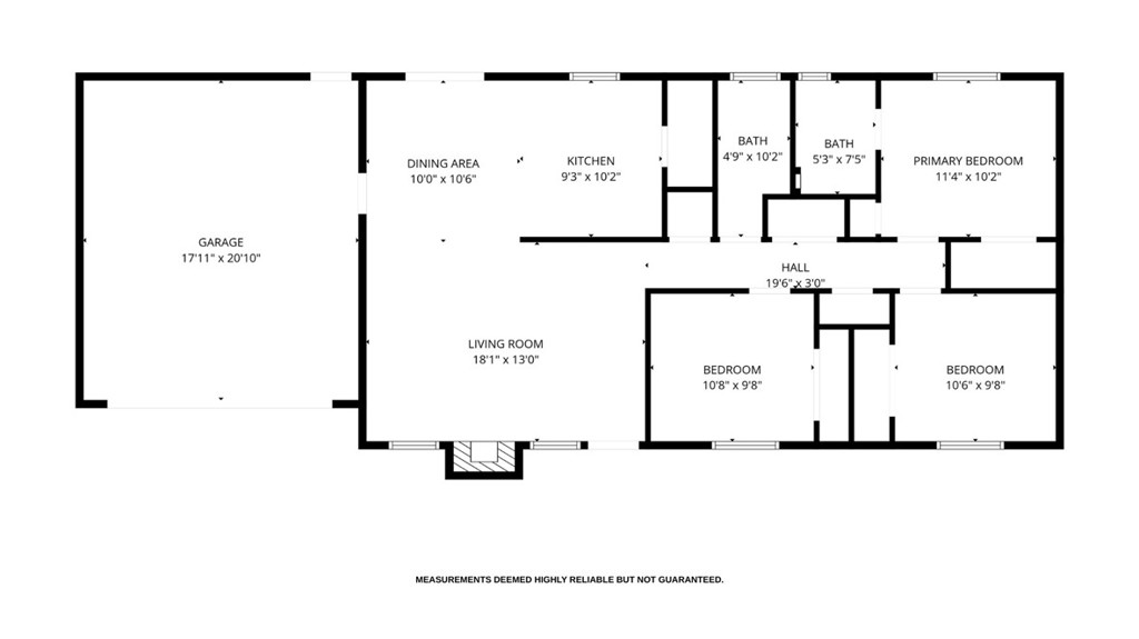
Darling Country Home Set On Over 2 Acres Of Open Land With Sweeping Rural Views. The Property Features Fresh Exterior Paint, A New Garage Door, And A Long Driveway Leading To A Spacious Two-Car Garage. Inside, Bright And Open Living Areas Showcase New Laminate Flooring, Fresh Interior Paint, Smooth New Texture, Recessed Canned Lighting, And Updated Ceiling Fans. The Updated Kitchen Offers New White Cabinets, Granite Countertops, And Ample Counter And Storage Space. Bathrooms Have Been Fully Refreshed With New Tile Showers, A Tub Insert in Hall Bath , New Vanities, Toilets, And Modern Fixtures. Generously Sized Bedrooms Provide Plenty Of Natural Light And Closet Space. The Expansive Lot Includes A Barn And Open Pasture Areas, Offering Endless Potential For Animals, Gardening, Or Outdoor Enjoyment. A Move-In Ready Country Property With Space, Privacy, And Modern Updates Throughout.
Home Details
Interior Spaces & Features
Community & Neighborhood
Subdivision
No subdivision info
Amenities
No specific amenities listed
Recreation
Recreation info not available
Location & Neighborhood
Frequently Asked Questions
Homeowner resources
Certified San Diego home inspectors
Schedule an inspectionTrusted local movers
Get a quoteCA homeowners insurance
Get a quoteDisclosure: We may have a referral relationship with selected providers.
Get More Info
Crown Coastal Support Team
Responds within 2 hours
“Reza was the best agent we have ever worked with.”— Russell & Susan McQueen
Listing Agent
