26 Montana del Lago

Property Overview
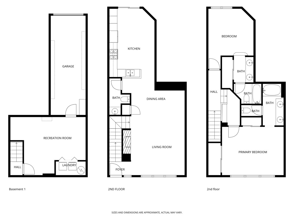
Walk in and you’ll notice it immediately: light, openness, and a sense of ease throughout 26 Montana Del Lago. Set within the desirable Rancho Santa Margarita community, this home blends comfort, function, and style with a layout designed for real life. Natural light fills the interior, creating an inviting atmosphere from the moment you enter, while an easy indoor flow makes entertaining and relaxing feel effortless. The kitchen anchors the home with generous counter space, ample cabinetry, and a practical connection to the main living and dining areas—perfect for hosting or keeping everyone together. The dual primary suites offers two true retreats with spacious bedrooms, en-suite baths, and closet spaces to match. Additional converted garage space provides flexibility for guests, a home office, or a workout space, and the secondary bathroom is thoughtfully positioned for convenience. Outside, enjoy a private patio space ideal for morning coffee, weekend BBQs, or unwinding at the end of the day. Additional highlights include an attached garage, in-home laundry, and smart storage throughout. Located close to the community pool, parks, trails, shopping, dining, and top-rated schools—plus access to Rancho Santa Margarita’s Lake renowned community amenities—this home offers the lifestyle you want in a location you’ll love.
Home Details
Interior Spaces & Features
Community & Neighborhood
Subdivision
Montana Del Lago (MDL)
Amenities
No specific amenities listed
Recreation
Recreation info not available
Location & Neighborhood
Frequently Asked Questions
Homeowner resources
Certified San Diego home inspectors
Schedule an inspectionTrusted local movers
Get a quoteCA homeowners insurance
Get a quoteDisclosure: We may have a referral relationship with selected providers.
Get More Info
Crown Coastal Support Team
Responds within 2 hours
“Reza was the best agent we have ever worked with.”— Russell & Susan McQueen
Listing Agent
