1155 E Adobe Way

Property Overview
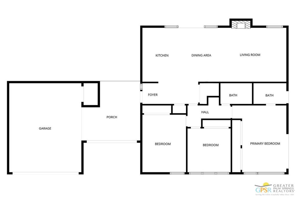
Believed to be one of the last Alexander-built butterfly roof homes constructed in Racquet Club Estates in 1962, this impeccably restored mid-century modern residence is a rare Palm Springs offering. Set on one of the largest lots in the neighborhood and enjoying coveted full southern exposure, the home delivers an exceptional modern desert lifestyle. Originally designed by Palmer & Krisel in the late 1950s, the iconic floor plan has been thoughtfully restored to honor its post-and-beam architecture, soaring clerestory windows, and clean modern lineswhile seamlessly adapting to today's living standards. The residence offers three bedrooms and two spa-inspired baths, complemented by a sleek European-style kitchen with quartz countertops and stainless steel appliances. Polished white porcelain floors and a striking block wall fireplace complete the refined interior aesthetic. Outdoors, the property truly shines. A sprawling resort-style pool and in-ground spa anchor the expansive grounds, joined by a bocce ball court, gazebo with fire pit, and meticulously designed desert landscaping. Wraparound mountain views and effortless indoor-outdoor flow create a setting ideal for both everyday living and entertaining. Recent upgrades include a newly coated foam roof, updated plumbing, refreshed pool systems, an on-demand water heater, and dual-pane windows throughout. Rare, iconic, and impeccably maintained, this is a home that must be experienced in person to be fully appreciated. Contact the listing agent to arrange a private showing.
Home Details
Interior Spaces & Features
Community & Neighborhood
Subdivision
Victoria Park/Vista Norte
Amenities
No specific amenities listed
Recreation
Recreation info not available
Location & Neighborhood
Frequently Asked Questions
Homeowner resources
Certified San Diego home inspectors
Schedule an inspectionTrusted local movers
Get a quoteCA homeowners insurance
Get a quoteDisclosure: We may have a referral relationship with selected providers.
Get More Info
Crown Coastal Support Team
Responds within 2 hours
“Reza was the best agent we have ever worked with.”— Russell & Susan McQueen
Listing Agent
