508 Daroca Avenue

Property Overview
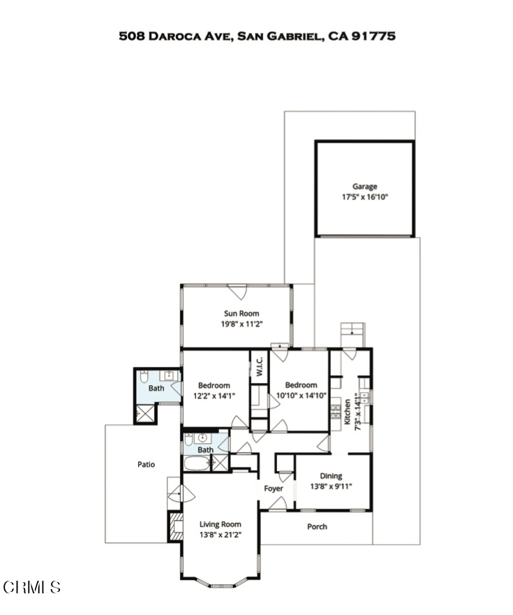
Located in a desirable pocket of San Gabriel, 508 Daroca Avenue presents a wonderful opportunity to take a charming house and create your dream home. This 2-bed, 2-bath residence features a spacious backyard, delightful side courtyard, and flexible layout that provides additional entertaining space. The living room is filled with natural light and features character details such as hardwood floors, built-in shelving, a bay window with plantation shutters, and a cozy gas fireplace. Access to the courtyard creates an inviting setting for both gatherings and quiet evenings at home. The formal dining room provides ample space for both dinner parties and intimate gatherings and connects to the galley kitchen with tile counters. A convenient laundry area is located just beyond. The guest bedroom is centrally located within the home and includes a generous closet while the adjacent sunroom overlooking the backyard could function as a third bedroom, home office, or den. The primary suite is thoughtfully tucked away for privacy and includes an updated ensuite bathroom. The backyard includes raised garden beds, a large open area, and a 2-car detached garage. Situated near the San Gabriel Country Club, historic Mission District, and shops & restaurants on Huntington Drive this property is a compelling opportunity not to be missed.
Home Details
Interior Spaces & Features
Community & Neighborhood
Subdivision
No subdivision info
Amenities
No specific amenities listed
Recreation
Recreation info not available
Location & Neighborhood
Frequently Asked Questions
Homeowner resources
Certified San Diego home inspectors
Schedule an inspectionTrusted local movers
Get a quoteCA homeowners insurance
Get a quoteDisclosure: We may have a referral relationship with selected providers.
Get More Info
Crown Coastal Support Team
Responds within 2 hours
“Reza was the best agent we have ever worked with.”— Russell & Susan McQueen
Listing Agent
